إعلان جديد
تسجيل الدخول
تسجيل الدخول
البريد الالكتروني
كلمة السر
تسجيل الدخول
إنشاء حساب جديد
نسيت كلمة السر
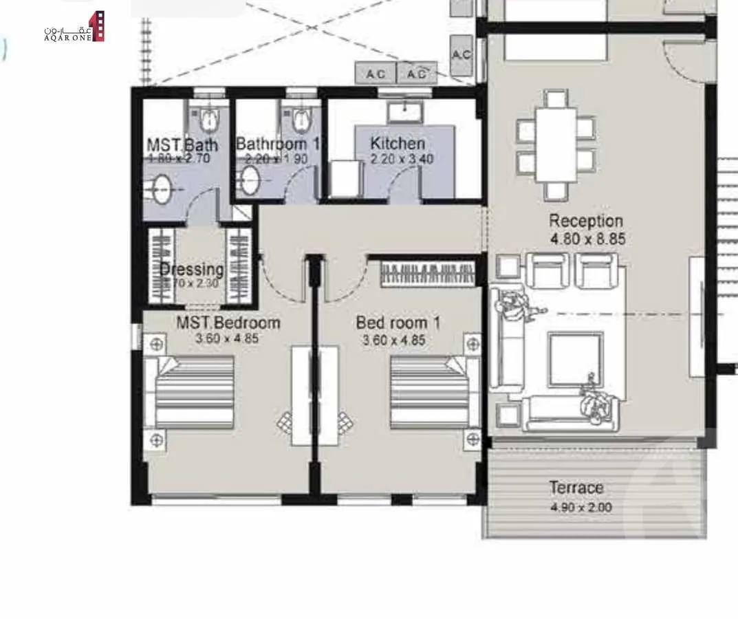
امتلك شاليهك في مارينا 8 بالساحل الشمالي
مارينا العلمين السياحيه، قسم مارينا العلمين السياحيه
الأحد، 8 سبتمبر 2024 في 6:23 م
نوع العقار:
مصايف / بيع
غرف نوم
2
الحمامات
2
الدور
1
تاريخ التسليم
2024
نوع التشطيب
SUPER_LUX
للبيع شاليه ريسيل في مارينا 8
العنوان:
مارينا 8 بالساحل الشمالي
إظهار الخريطة