فيلا لقطه للبيع علي التسعين الشمالي

property image
property image
property image
property image
property thumbnail
property thumbnail
property thumbnail
property thumbnail
قسم طره، القاهرة
السبت، 19 فبراير 2022 في 8:41 م
نوع العقار:
ڤيلات / بيع
غرف نوم
3
الحمامات
3
مفروش
لا
تاريخ التسليم
استلام فوري
النوع
توين هاوس
شارع التسعين الشمالي مباشره بعد التواتر واي بحوالي ٩٠٠ متر 
كمبوند شركه الفرسان (وان بيس) 
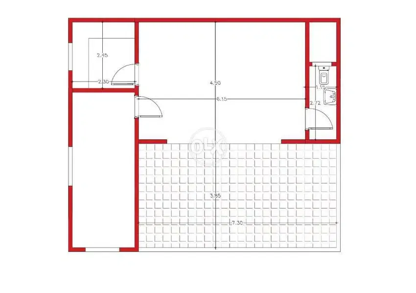
بيزمنت وارضي واول وروف وحديقه وجراج 
مباني ٣٢٠ متر وحديقه ١١٥ متر.
العنوان:
غير متوفر تفاصيل العنوان