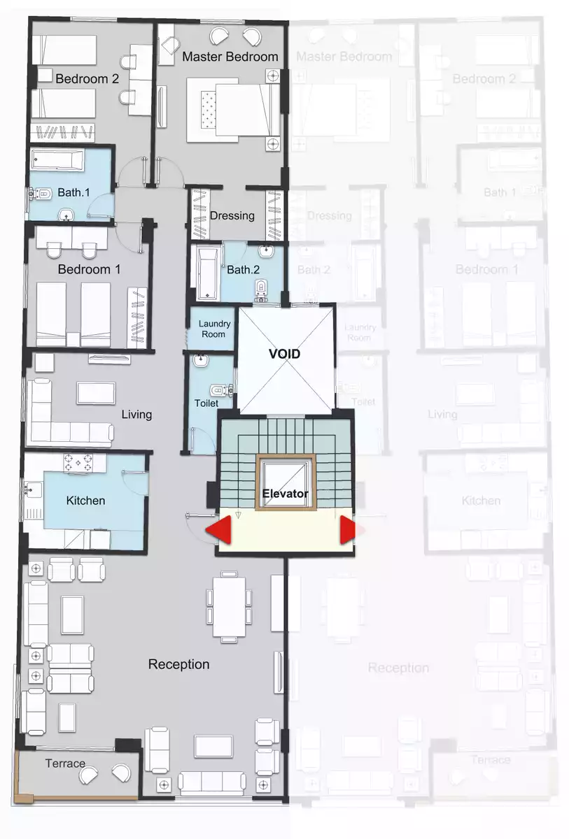
شقه 251م ببيت الوطن الحى السادس تعاقد 20% و الباقى على 4 سنوات بدون فوائد

property image
property image
property image
property image
property image
property image
property image
property image
property image
property thumbnail
property thumbnail
property thumbnail
property thumbnail
property thumbnail
property thumbnail
property thumbnail
property thumbnail
property thumbnail
الفردوس والكوثر، قسم شرطه التجمع الاول
الاثنين، 28 أبريل 2025 في 2:17 م
نوع العقار:
شقق / بيع
غرف نوم
4
الحمامات
3
الدور
3
تاريخ التسليم
2025
نوع التشطيب
SEMI_FINISHED
شقه 251م ببيت الوطن الحى السادس تعاقد  25% و الباقى على 4 سنوات بدون فوائد
العنوان:
بيت الوطن - الحى السادس