التمويل التجارى

property image
property image
property image
property image
property image
property image
property image
property image
property image
property image
property image
property image
property image
property thumbnail
property thumbnail
property thumbnail
property thumbnail
property thumbnail
property thumbnail
property thumbnail
property thumbnail
property thumbnail
property thumbnail
property thumbnail
property thumbnail
property thumbnail
شياخه العصاره، قسم اول السلام
الثلاثاء، 19 نوفمبر 2024 في 12:10 ص
نوع العقار:
عقارات تجارية / بيع
غرف نوم
1
الحمامات
3
الدور
4
تاريخ التسليم
2012
نوع التشطيب
EXTRA_SUPER_LUX
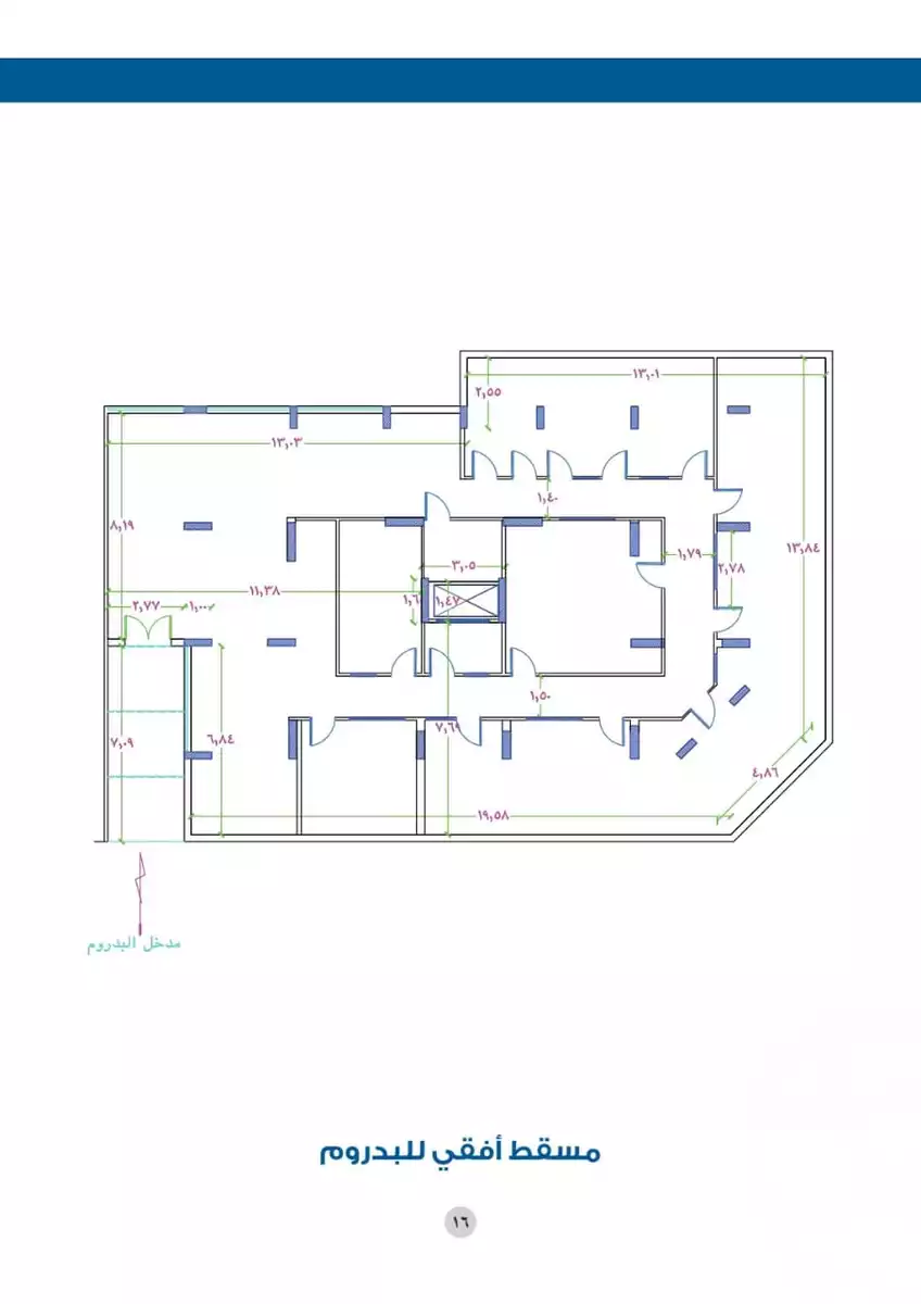
مبنى ناصية مرخص إدارى موقع متفرد على جسر السويس مباشراً بجوار محطة مترو الهايكستب
العنوان:
القاهرة / مصر الجديدة / جسر السويس / تقسيم التجاريين بجوار محطة مترو الهايكستب